モノづくりの困ったを解決する総合サイト

Produced by

特定化学物質を局所排気 作業環境の保全を実施【FRP工場の局所排気工事】 メーカー改善事例集

テラル

  • 業界

    製造・加工業

  • 目的

    品質改善・環境改善

■導入経緯

  • 特定化学物質を含有する塗料を扱うので、作業環境への発散を抑制したい。
  • 労働安全衛生法、特定化学物質障害予防規則に適合する仕様であること。
  • 現状と変わらない作業が行えるように局所排気フードを配置検討を考慮したい。
  • 局所排気フードは、清掃が用意に行える構造に設計して欲しい。
  • 吸引ダクトは、作業場内の作業者、搬送車両等の導線を妨げないこと。

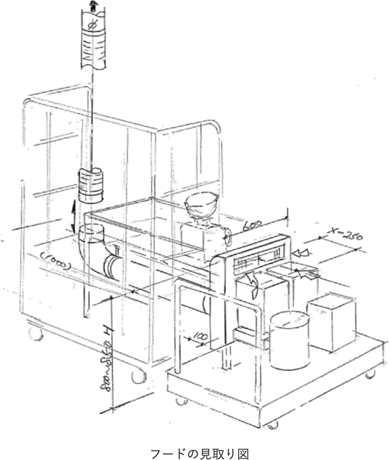
■施工概略

  • 作業性を損なわない構造の局所排気フードであること

■換気装置の性能要件

  • 対象法規:特定化学物質障害予防規則
  • 排気フードの型式:外付け式局所排気フード
  • 排風機:遠心式送風機(シロッコファン)Φ3×200V×5.5kW
  • 制御風速:0.5m/s以上(法定制御風速0.5m/s)

■成果

  • 外付け式フードにて作業性や作業効率に支障なく有害ガスを排気した。
  • 作業環境濃度が基準値を大きく下まわり、良好な作業環境を実現できた。

このページは、テラル様の了承のもと事例を転載しております。
https://www.teral.net/solution_case/solution_case-848/

1952年設立で、動力伝導機器・産業機器・制御機器等の機械設備及び機械器具関連製品の販売をしている専門総合商社です。
日本国内で40以上の拠点を持ち、信頼性の高い製品と技術力で、全国のものづくりに携わる方々のあらゆるお困りごとを解決しています。