KL2
-
KL2
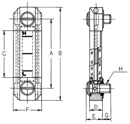
■取り付けやすさ、見やすさを追求したスタイリッシュなデザイン。
・目盛り幅が大きく、油量の変化がわかりやすい。
・薄型で、小さなスペースでも取り付け可能です。
■樹脂製オイルゲージの基本タイプです。
・K2L型オイルゲージは取り付けボルト・セット部分に特殊合成樹脂を使用。
・オイル窓部分には耐衝撃性に強く、荷重変形の少ない透明樹脂を使用しています。
■取り付けボルト・セット部分とオイル窓部分は、接続バーで接合しています。
・このため、オイルゲージの取り付けの時は取り付けパッキンだけでシールでき、取り付けが簡単です。
■反射板は白地に赤の目盛りを入れ、またオイル窓部分の裏面は白色印刷しています。
・そのためオイルの量確認はもちろん、オイルの仔細な症状も見逃しません。
■分解、組立が簡単にでき、内部の手入れが容易です。
■耐熱:90℃
■耐圧:0.5~0.8MPa
■耐シンナー用のSタイプもございます。

