【高速搬送に最適】高速運転・特殊角度対応のミニカーブコンベヤ
・プーリ径が小さく、小物の渡りがスムーズにできます。
・曲率半径が小さく、本体は薄型コンパクトボディを採用したコンベヤ。
・低騒音・低振動を実現しました。
・搬送能力が大きく、中~軽量物に幅広く対応できます。
・ベルトの耐久性に優れ、保守管理の手間もかかりません。
・ベルトの取り付け、取り外しが簡単なコンベヤです。
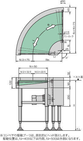
共通仕様
| カーブ角度α(度) | 45、90、180 |
|---|---|
| 内側半径Ri(�o) | 200 |
| ベルト有効幅N(�o) | 200、300、400、500 |
| 中央半径Rm(�o) | 300、350、400、450 |
| 本体塗装色 | シルバーメタリック(脚部はメッキ) |
| 機高H(�o) | 500~1100±30 |
| 搬送用ベルト | ニッタ NLG 1プライ |
| 最大搬送重量 | 147N/台 |
| 使用環境 | 0℃~40℃の屋内とし、 直射日光・粉塵・水・薬液は避けて下さい。 |
| ベルト中央速度(m/min) | MAX50m/min |
| モータ | 電源 三相200V 0.1kw・0.2kw |

