C501TW
-
C501TW
-
C501-12TW
-
C501-14TW
-
C501-16TW
-
C501-18TW
-
C501-20TW
-
C501-22TW
-
C501-24TW
-
C501-26TW
-
C501-28TW
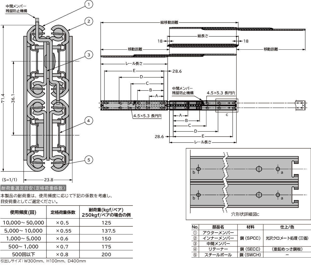
・重量用の鋼製スライドレールです。
・両トラベル仕様です。
・中間メンバー残留防止機構付のため、レールを全閉しても中間メンバーは、はみ出ません。
<用途>
・ワークストッカー、コンベア、医療用カートなど
<推奨ねじ>
・M4バインド、またはM4トラスねじ

