・オリジナルメカニズム<ラプコン>の働きにより、扉の開閉動作をソフト&スムーズにコントロールします。
・扉はわずかな力で開きます。
・約30°~70°の範囲では、扉は任意の位置で止められます。
・約0°~20°の範囲では、扉から手を離しても、ゆっくりと閉まり安全です。
・2011年度グッドデザイン賞を受賞しました。
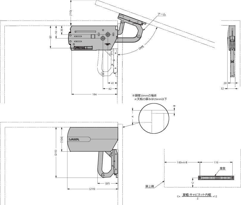
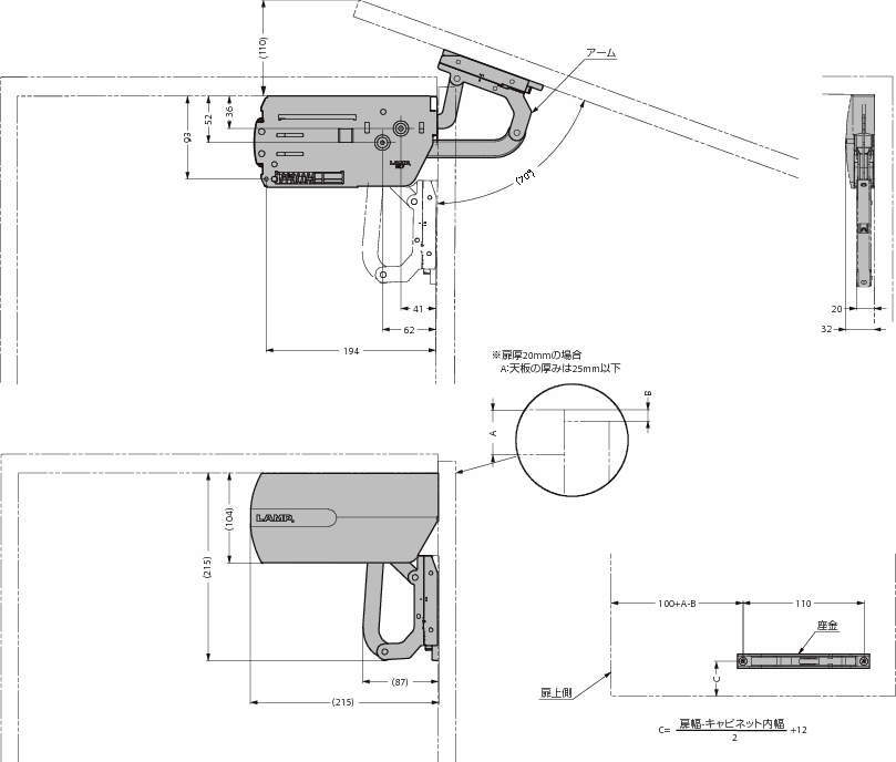
・キャビネット天板下部に取り付けるため、従来のステーよりも高さ方向のデッドスペースが少なく、棚を取り付ける際もステーが邪魔になりません。
・取り付けには、丁番や連動バーは不要です。
・本体ユニットの取付位置は、天板下と小口面に合わせるだけで簡単です。
・扉座金はワンタッチで本体ユニットに取り付けできるため、施工が簡単・スピーディーです。
・扉の重さに伴うトルク調整は不要で、施工後の手間がかかりません。
・3万回の開閉試験(同社基準)をクリアしています。
共通仕様
| 材料・仕上 | 鋼、ニッケルめっき ABS樹脂、ライトグレー |
|---|---|
| 開き方 | スイング上開き |
| 仕様 | リフトアシスト、フリーストップ、ソフトクローズ |

