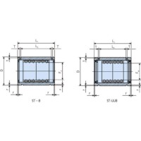
・円筒状の軌道面をもつ外筒と保持器に組み込んだ鋼球の組合せにより、回転運動と同時に軸方向の往復直線運動が可能です。
・精密に仕上げられた外筒に高精度な鋼球を組み込むことで、小さな転がり運動抵抗、極めて円滑な回転運動と往復運動を実現しています。
・保持器は剛性が高く軽量なため、運動慣性力が小さく、高速での回転運動や往復運動に適しています。
・開放形と密封形をラインナップ。機械・装置の仕様に合わせて最適な製品を選択することができます。
共通仕様
| タイプ | ST-B:開放形 ST-UUB:密封形 |
|---|

