EL
-
EL
■ローヘッド形サドル
・クルマおよびクルマジクが取りはずせる構造を採用しており、クレーン据付作業およびメンテナンス作業の時間を大幅に短縮できます。
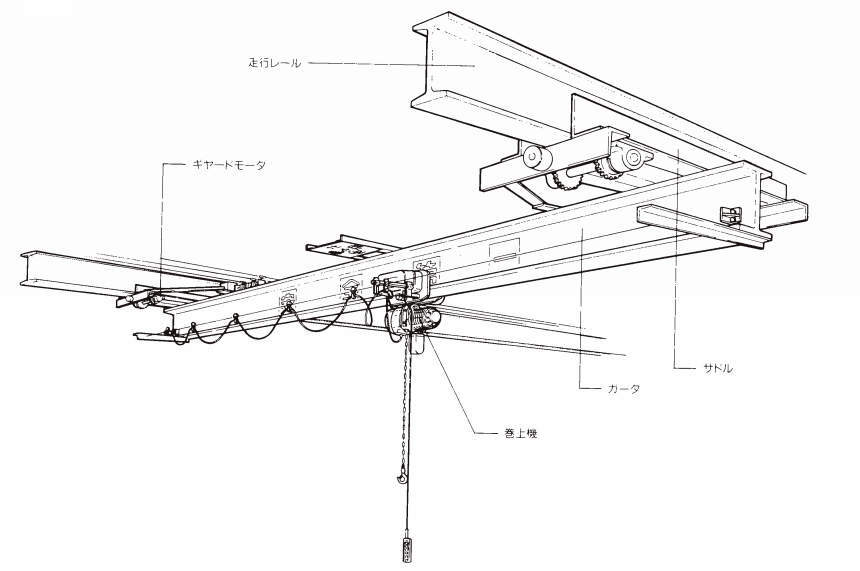
■ローヘッド形クレーンの特長
・作業フロアを最大限に利用する懸垂形クレーン。
・建屋の天井梁に走行レール(I ビーム)を固定し、それに懸垂するタイプのクレーンです。
・走行レールの取り付け位置およびスパンが自由に設定できるため、生産ラインの工程に合わせて最適な設計が可能です。
■サドルの特長
・ユーザーニーズにお応えして高性能の追求と機種の拡大・標準化をはかり、コストダウンを実現しました。
・クルマは機械構造用炭素鋼の採用により、耐摩耗性に優れています。
・プライマ塗装を採用していますので、お客様のご希望の色で仕上げることができます。プレン式は、KITO Yellow(7.2YR6.5/14.5相当)。
・ガーダ取付け用のポンチマークにより芯出しが容易で、穴加工が簡単にできます。
■ギヤードモータの特長
・電磁ブレーキ付ギヤードモータを採用。ブレーキトルク調整式(モータ定格トルクに対し0~50%但し0.25kWは30~80%)ですので、作業に適した制動力が得られ荷振れを押さえることができます。
・歯車にはヘリカルギヤを採用。走行音がいっそう静かになりました。
・緩起動装置として安価なソフトランが滑らかな始動で荷振れの少ない安全な作業を実現します。
・緩起動・緩停止機能を備えたインバータは、お客様の思い通りの加速・減速をパターン設定で実現できます。
・走行速度の種類は1速形4種類、2速形1種類(変速比4:1)をそれぞれ用意。さらに効率の良い作業が実現できます。

