モノづくりの困ったを解決する総合サイト

Produced by

標準ボールねじ(軸端完成品)|工作機械用ボールねじ SA

SA形は、工作機械用の精密ボールねじ(軸単完成品)です。

■循環方式
【チューブ式】
・ボールサイズに見合ったパイプを始点と終点間に渡して循環する方式
・仕様(軸径・リード)対応範囲がひろい

■他の追従を許さない高精度
・NSKが開発した研削方式、計測機器により高精度を実現しました

■優れた耐久性
・清浄度の高い合金鋼を使用し、優れた耐久性を実現しました

■バックラッシュがなく高剛性
・NSKボールねじはゴシックアーク溝形状を採用することにより、ボールと溝のすきまを極小にできます
・さらに予圧を与えることによりすきんまをゼロにでき、バックラッシュはありません
・また、予圧量を管理することにより、使用条件に応じた剛性が得られます
・予圧を与えていない場合でも、ボールと溝のすきまを極小にできるので、バックラッシュは微小です

■円滑な動作で高効率
・サーキュラ溝ではボールがナットとねじ軸の溝にくさび的に食込む現象を生じますが、ゴッシックアーク溝にはこのようなことがありません
・このことと、本来ボールねじが持つ低摩擦と相まって円滑な動作の高効率の運動転換ができます

#ボールねじ

詳細仕様

  • 156件中 21-30件

  • 表示件数

156件の型式

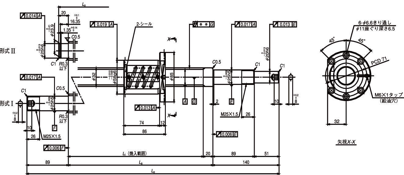
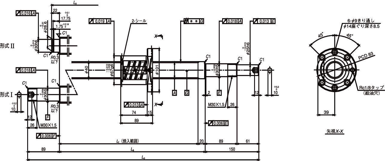
型式 ねじ軸径 リード ねじれ方向 ボール径 ねじ軸谷径 有効巻数 ストローク ねじ軸長さ 左側軸端形式 リード精度 軸心の振れ 質量
(kg)
基本定格荷重(N) 許容回転数N(min-1) 精度等級 予圧 予圧荷重
(N)
呼び 最大 Lt La L0 T ep VV 動定格Ca 静定格C0a 固定-支持 固定-固定
W2503SA-2P-C5Z5 25 5 3.175 22.2 2.5×2 300 309 370 400 499 II -0.009 0.025 0.020 0.040 2.3 12300 21800 2800 - C5 オーバーサイズボール予圧 540
W2504SA-2P-C5Z5 25 5 3.175 22.2 2.5×2 400 409 470 500 599 II -0.011 0.027 0.020 0.050 2.7 12300 21800 2800 - C5 オーバーサイズボール予圧 540
W2505SA-2P-C5Z5 25 5 3.175 22.2 2.5×2 500 509 570 600 733 I -0.014 0.030 0.023 0.060 3.1 12300 21800 2800 2800 C5 オーバーサイズボール予圧 540
W2506SA-1P-C5Z5 25 5 3.175 22.2 2.5×2 600 609 670 700 833 I -0.016 0.035 0.025 0.075 3.4 12300 21800 2800 2800 C5 オーバーサイズボール予圧 540
W2507SA-2P-C5Z5 25 5 3.175 22.2 2.5×2 700 709 770 800 933 I -0.018 0.035 0.025 0.075 3.8 12300 21800 2800 2800 C5 オーバーサイズボール予圧 540
W2509SA-1P-C5Z5 25 5 3.175 22.2 2.5×2 900 909 970 1000 1133 I -0.023 0.040 0.027 0.090 4.5 12300 21800 2800 2800 C5 オーバーサイズボール予圧 540
W2511SA-1P-C5Z5 25 5 3.175 22.2 2.5×2 1100 1109 1170 1200 1333 I -0.028 0.046 0.030 0.120 5.2 12300 21800 2520 2800 C5 オーバーサイズボール予圧 540
W2503SA-3P-C5Z6 25 6 3.969 21.4 2.5×2 250 302 370 400 533 - -0.009 0.025 0.020 0.050 2.5 16600 26700 2800 2800 C5 オーバーサイズボール予圧 685
W2505SA-3P-C5Z6 25 6 3.969 21.4 2.5×2 450 502 570 600 733 - -0.014 0.030 0.023 0.060 3.2 16600 26700 2800 2800 C5 オーバーサイズボール予圧 685
W2507SA-3P-C5Z6 25 6 3.969 21.4 2.5×2 650 702 770 800 933 - -0.018 0.035 0.025 0.075 3.9 16600 26700 2800 2800 C5 オーバーサイズボール予圧 685

型式 商品コード 単位 価格
(円)
基準納期
日伝 メーカー
W2503SA-2P-C5Z5 W2503SA-2P-C5Z5 P 128,000 - 在庫品
W2504SA-2P-C5Z5 W2504SA-2P-C5Z5 P 140,000 - 在庫品
W2505SA-2P-C5Z5 W2505SA-2P-C5Z5 P 153,000 - 在庫品
W2506SA-1P-C5Z5 W2506SA-1P-C5Z5 P 165,000 - 在庫品
W2507SA-2P-C5Z5 W2507SA-2P-C5Z5 P 178,000 - 在庫品
W2509SA-1P-C5Z5 W2509SA-1P-C5Z5 P 204,000 - 在庫品
W2511SA-1P-C5Z5 W2511SA-1P-C5Z5 P 229,000 - 在庫品
W2503SA-3P-C5Z6 W2503SA-3P-C5Z6 P 128,000 - 在庫品
W2505SA-3P-C5Z6 W2505SA-3P-C5Z6 P 153,000 - 在庫品
W2507SA-3P-C5Z6 W2507SA-3P-C5Z6 P 178,000 - 在庫品

この製品を見た人はこのような製品も見ています

1952年設立で、動力伝導機器・産業機器・制御機器等の機械設備及び機械器具関連製品の販売をしている専門総合商社です。
日本国内で40以上の拠点を持ち、信頼性の高い製品と技術力で、全国のものづくりに携わる方々のあらゆるお困りごとを解決しています。

Loading...